Quaywest Residence For Sale In Bayan Indah Propsocial
Quaywest Residence Penang Propxpress
Type A2 728 Sqft Penang Property Talk
Quaywest Residence Bayan Mutiara Review Propertyguru Malaysia
Quay West
Type F1 01 1246sqft Penang Property Talk
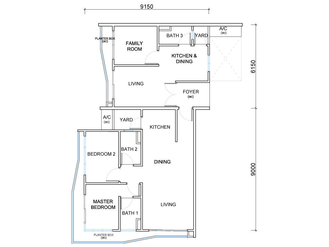
Type E1 01 1887sqft Penang Property Talk
Type G1 Penang Property Talk
Quaywest Residence For Sale Penang Penang Properties Com