Sathu Terrace Floor Plan



Sathu terraces embrace the contemporary tropical style which is full of warm serene vitality.

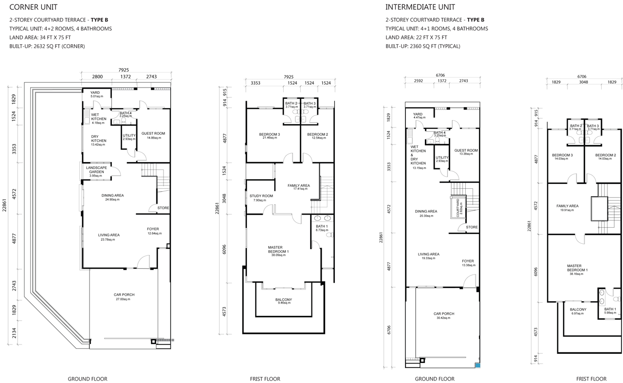
Sathu terrace floor plan. Features materials finishes. Renderings are intended only as a general reference. View floor plans photos and community amenities.

Destiny homes presents their terrace floor plan. Village terrace offers 1 2 3 bedroom floor plans. This ranch plan features three bedrooms 2 5 bathrooms and over 1500 square feet of finished space.

Make terrace garden your new home. Check for available units at terrace garden in omaha ne. It features a car porch that is spacious enough to park two cars.

Very popular floor plan with its large living bedroom area and large kitchen with tons of cabinet space. One residence dua villas three residency. Longview terrace apartments 2900 seay street alexandria va 22314.

Feb 23 2016 explore victoria drese s board terrace house floor plans on pinterest. One residence consists of 3 types of luxury homes called sathu terraces dua villas and tree residency. Floor plan images are only representations and actual floor plan layouts may differ slightly than pictured.

Completed in 2012 one can reach here via jalan tun dr awang route towards persiaran rajawali. Rest easy knowing that your new apartment home is constructed with quality and designed with comfort in mind. Prices and special offers are valid for new residents only.

Simple yet elegant the minimalist concept is clearly showcased in the clean neat lines being both modern and spacious. Rent amounts shown represent 12 month lease term rates. Shorter lease terms available call for pricing.

Pricing and availability are subject to change at any time. Contact one of our leasing specialist for further information. With a roofed b.

Sathu terraces is part of the one residence luxury homes developed by ideal property situated in bayan lepas penang. The dining area sits at the front of the home and opens up to the kitchen living room that boasts large picture windows electric fireplace pantry island and stainless steel appliances. See more ideas about house floor plans terrace house floor plans.

Freehold and stunningly designed. Master bedroom features a walk in closet shower and.